2013 has certainly been the fastest year of my entire life. Without a doubt. Between the pregnancy, our growing business, design clients, and our 3rd floor renovation (whew!), this year is flying by so fast. And now, in just a matter of days, we are about to welcome our first baby into the world (official due date is September 14th). It's kind of mind blowing. With all the days of your life... and, only a handful of days remain between "before kids" and "after kids". Nearly 6 years of marriage and we are about to become parents (what?). And, even though my hormonal self has had 9 months to adjust to this exciting transition, the concept is still equally astounding. :)
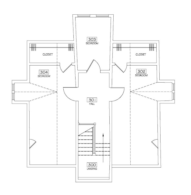
An update on our project: the 3rd floor renovation is now completely finished and for the last couple of weeks, I've been working to furnish the space. I've been buying rugs, installing new bedding, pulling hoarded vintage furniture out of storage, and getting everything set up. It's a great feeling... especially, when I'm reminded that not too long ago, the 3rd floor looked like this. But, we now have two guest rooms with walk-in closets and each bedroom holds a queen-sized bed. Between the two guest rooms is a tiny little room with two large windows that face the front of the house. Here's the floorplan:
Some of you have emailed me asking about our living situation. Here's the deal: we've decided to bunk up on the 3rd floor while we finish the renovation on the 2nd floor. It feels a little backwards, but I'm so BEYOND HAPPY with the way that the 3rd floor turned out, I want my entire house to feel this way. So, I don't mind waiting. :) Living on the 3rd floor is hardly a sacrifice, for now. The three of us (baby included) will be living up there over the winter months and most likely into the spring/summer 2014 (I feel like I should write an entire post about living through a massive home renovation-- and I probably should. But, I'll save that topic for another time). Dave and I will sleep in one of the guest rooms, and baby will live in the tiny front room. Even though the permanent nursery will eventually reside on the 2nd floor, I've decided to do my best and design his temporary little room in the meantime. Here is my inspiration board for the nursery:
The vintage bamboo armoire (that I've been hoarding for years now) won't fit in this 3rd floor space, so that will have to wait until the 2nd floor is complete. But, almost everything else managed to squeeze into that tiny room!
If you follow me on Instagram, you've already seen a couple of sneak peeks. But, here are some additional photos of the space as it comes together...
(drawer organizers from Ikea-- go buy them, they'll change your life)
We are still waiting on our glider, so once that arrives I will post some additional photos of this precious little room. :) In the meantime, we're on baby watch.
...

